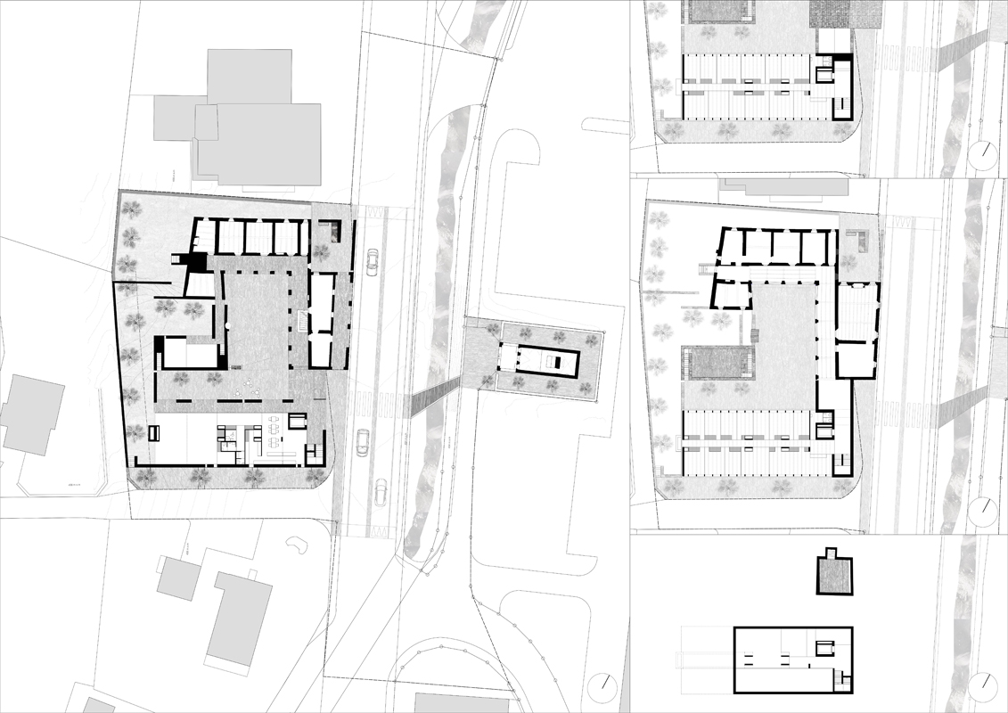
concorso centro civico e culturale casa dei landfogti monteceneri ti 2024 - 1.premio
www.casadeilandfogti.ch
Close